Work
Profile
Collaborators
Home
Work
Profile
Collaborators
Home
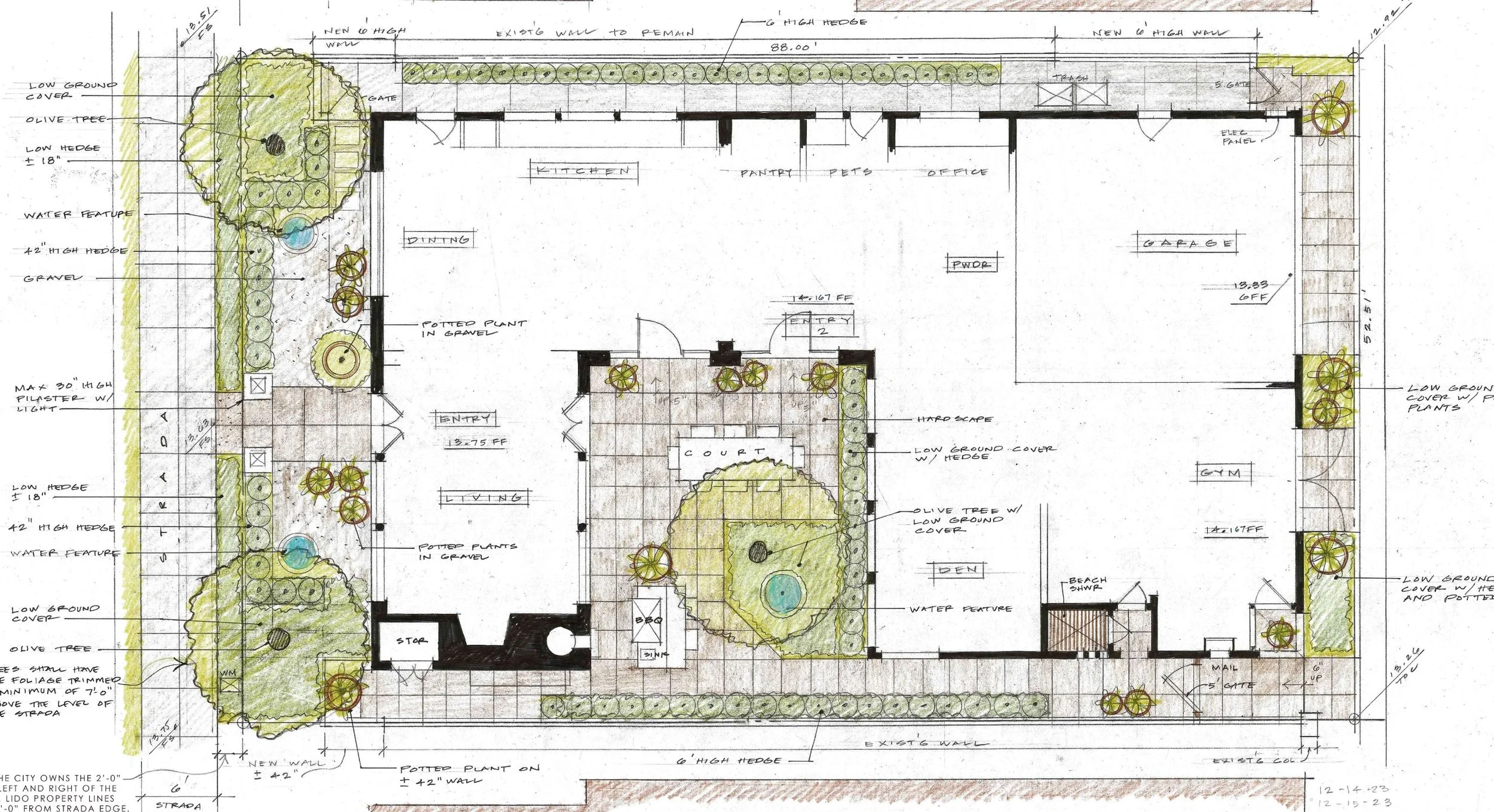
Lido Island Villa
1
2
3
4
5
6
7
8
9
10
Previous
Next
All
Arizona Compound
Little Balboa Island House
Laguna Beach Canyon Compound
Monarch Bay Oceanfront
Sun Valley House
Balboa Peninsula Cottage
Michigan Barn
Big Island O'hana Compound
Newport Beach Compound
Atherton House
High Alpine Mountain House
Monarch Bay II
Bahamas Island House
Pebble Beach House
Napa Valley Cottage
Newport Beach House
Nashville Compound
Western US Family Compound
Balboa Peninsula House
West Hollywood Villa
Lido Island Villa
Montana Ranch Compound
Pacific Palisades House
La Quinta Desert House
Utah Family Ranch
Desert House
Irvine Terrace II
Newport Harbor Bayfront House
Nantucket Family Compound
Santa Monica House
Big Canyon
Laguna Beach Hillside House
Shady Canyon Family Compound
Northern California Lakefront Compound
Irvine Terrace I
Coral Canyon Neighborhood
Sun Valley Compound
San Juan Capistrano House
Irvine Terrace III
Wisconsin Lakehouse
Newport Harbour Bayfront Compound
Lake Tahoe
Park City River Compound
Bay Front House
Newport Rhode Island
Strand V
Beacon Bay
Park City Utah Compound
Austin Lakehouse
Shady Canyon House II
Sonoma Wine Country
Strand VII
Strand Oceanfront
Madison Club Desert House
Tampa Bay House
Strand VI
Newport Beach II
Arizona Compound
Little Balboa Island House
Laguna Beach Canyon Compound
Monarch Bay Oceanfront
Sun Valley House
Balboa Peninsula Cottage
Michigan Barn
Big Island O'hana Compound
Newport Beach Compound
Atherton House
High Alpine Mountain House
Monarch Bay II
Bahamas Island House
Pebble Beach House
Napa Valley Cottage
Newport Beach House
Nashville Compound
Western US Family Compound
Balboa Peninsula House
West Hollywood Villa
Lido Island Villa
Montana Ranch Compound
Pacific Palisades House
La Quinta Desert House
Utah Family Ranch
Desert House
Irvine Terrace II
Newport Harbor Bayfront House
Nantucket Family Compound
Santa Monica House
Big Canyon
Laguna Beach Hillside House
Shady Canyon Family Compound
Northern California Lakefront Compound
Irvine Terrace I
Coral Canyon Neighborhood
Sun Valley Compound
San Juan Capistrano House
Irvine Terrace III
Wisconsin Lakehouse
Newport Harbour Bayfront Compound
Lake Tahoe
Park City River Compound
Bay Front House
Newport Rhode Island
Strand V
Beacon Bay
Park City Utah Compound
Austin Lakehouse
Shady Canyon House II
Sonoma Wine Country
Strand VII
Strand Oceanfront
Madison Club Desert House
Tampa Bay House
Strand VI
Newport Beach II